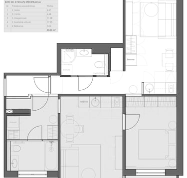
Jungtinis butas, projektuotas pardavimui.
Šis butas iš vieno buvo padalintas į du, taigi šios nuotraukos - mažesniojo buto.
Mažoje erdvėje reikėjo sutalpinti vonios kambarį, virtuvę su svetaine ir miegamojo zoną. Kadangi kambario plotas vos 17 kvadratinių metrų, buvo nuspręsta sofą pirkti su miegojimo funkcija.
Butui parinktos tarpusavyje kontrastuojančios, tačiau derančios spalvos, sukuriančios jaunatvišką, modernų, jaukų pojūtį nedideliame būste.
28 kv.m. butas Vilniuje














