Jungtinis butas, projektuotas pardavimui.
Šis butas iš vieno buvo padalintas į du, taigi šios nuotraukos - būtent didesniojo buto.
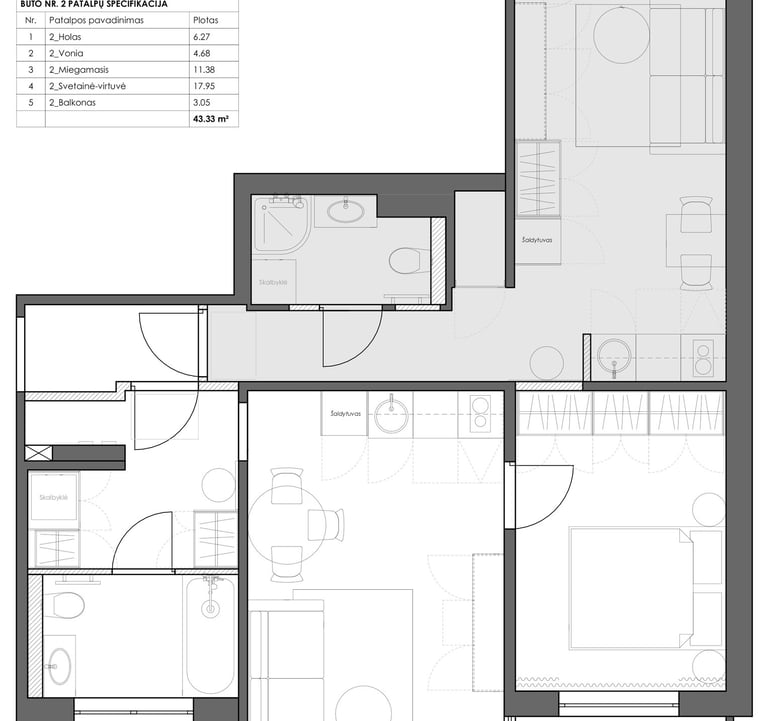
Virtuvė čia perkelta į svetainę, o buvusioje virtuvėje įrengta patogi vonia, turinti didelį langą - kas yra itin rets reiškinys senos statybos namų vonios kambariuose.
Butui parinktos tarpusavyje kontrastuojančios, tačiau derančios spalvos, sukuriančios jaunatvišką, modernų, jaukų pojūtį atnaujintame būste.
44 kv.m. butas Vilniuje


























