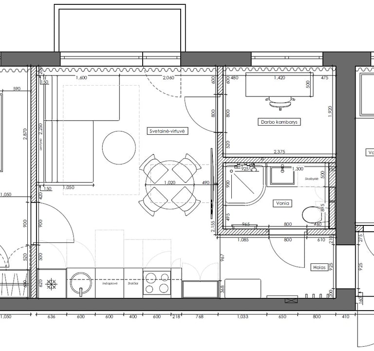
Kartu su Loreta ir Aurimu (MB Metas NT) įrengėme 52 kv.m. butą Vilniuje, Naujininkų rajone. Šiame bute virtuvė buvo perkelta į svetainės zoną, tad rezultate turime 4 kambarius (svetainę-virtuvę, miegamąjį, vaiko kambarį bei darbo kambarį), dušinę, taip pat suformuota drabužinė, tad pilnai išnaudotas kiekvienas šio objekto kvadratas.
Būstas atnaujintas šviesiomis, šiltomis spalvomis, dėl to gavosi jaukus, šeimai pritaikytas interjeras.
Fotografas: Aivaras Ruginis
52 kv.m. butas Vilniuje | D10






























