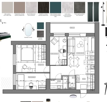
Kartu su MB Asset partners įgyvendintas modernus, jaukus interjeras 4 kambarių bute. Jis funkcionaliai perplanuotas į bendrą svetainės-virtuvės erdvę, du miegamuosius ir vieną darbo kambarį, kuris tapo būtina erdve šiuolaikiniuose namuose. Šiame būste nusprendžiau panaudoti gan neįprastą dekorą virtuvės baldams, kad išgautumėme išskirtinį vaizdą. Bendra svetainės ir virtuvės erdvė žavi erdvumu ir derančiomis spalvomis bei apgalvotais apšvietimo scenarijais - kviečiu tuo įsitikinti peržiūrint buto nuotraukas!
Fotografas Aivaras Ruginis, dekoratorė Ieva Valiuškevičienė
66 kv.m. butas Vilniuje






























































