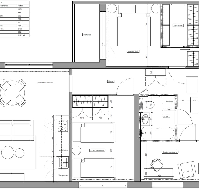
Šis butas maksimaliai išnaudotas mažiausiai 4 asmenų šeimos komfortabiliam gyvenimui. Maža virtuvė paversta į darbo kambarį, kuris gali būti transformuojamas ir į nedidelį vaiko kambarį, tuo tarpu virtuvės baldai 'perkelti' į svetainės zoną. Vonios ir WC patalpos sujungiamos ir padidinamos, tad gauname daug erdvumo, atsiranda vietos skalbyklei. Miegamajame suformuota drabužinė, kuri tikrai retai pasitaiko senos statybos butuose.
Būstui parinktos šiltos, jaukiai rudeniškos spalvos, interjerą pagyvina žalios ir aukso spalvos elementai.
Džiugu, kad kartu su projekto vystytojais MB Asset partners antrajam gyvenimui prikėlėme dar vieną butą, kuriame, tikiu, įsikurs graži šeima. Kviečiu peržiūrėti nuotraukas ir įvertinti rezultatą!
69 kv.m. butas Vilniuje


































